Konfigurator domu

PL/EN

PROJEKT LIVIO 5 PB

Powierzchnia domu po podłodze: 35 m²

Lorem ipsum dolor sit amet ...

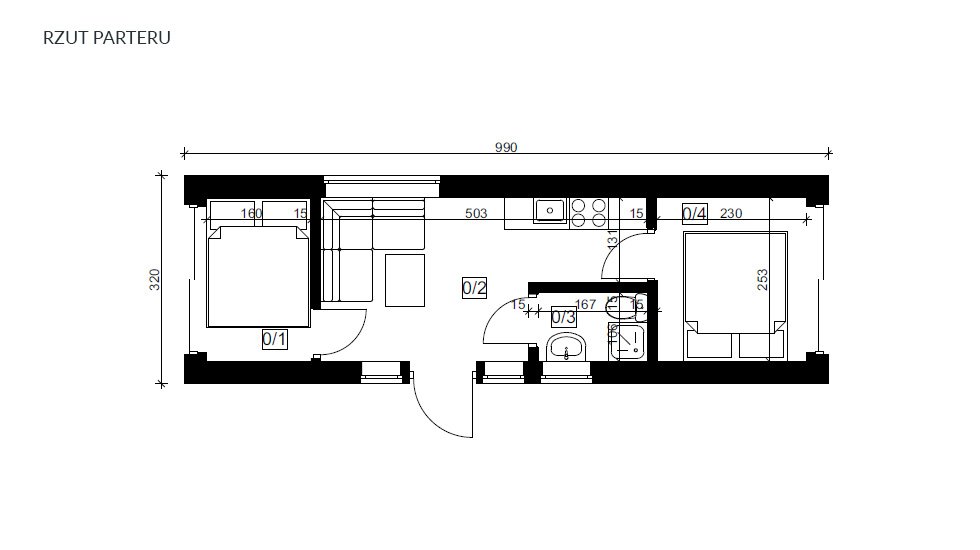
Parter 22,96 m²
0/1 Sypialnia 4,39 m²
0/2 Salon + kuchnia 10,64 m²
0/3 Łazienka 1,78 m²
0/4 Sypialnia 6,15 m²
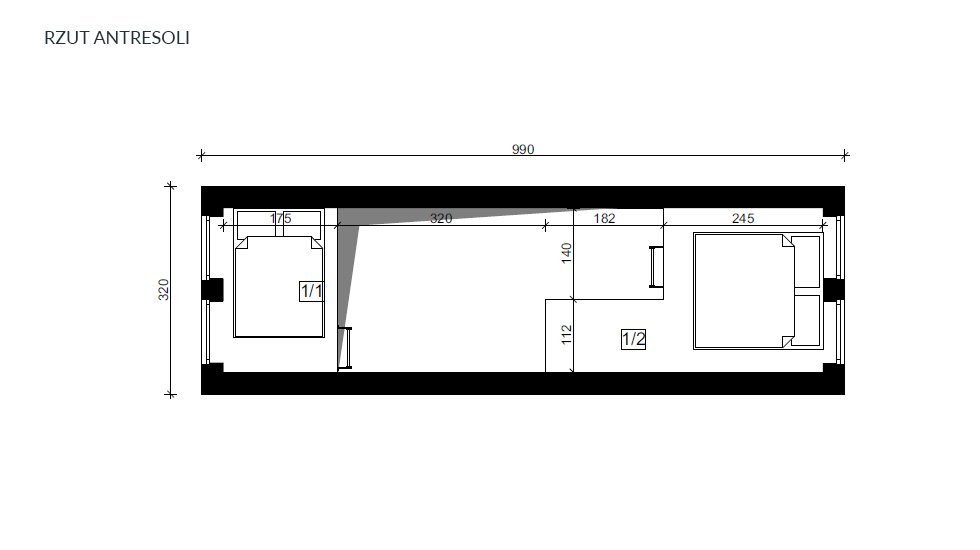
Antresola 12,65 m²
1/1 Sypialnia PN: 4,42 m²
PB: 1,56 m²
1/2 Salon + kuchnia PN: 8,23 m²
PB: 2,69 m²

 

Przejdź do formularza konfuguratora »

Wybierz/zaznacz parametry konfigurowanego domu

pokrycie dachowe dodatkowe elementy
instalacja elektryczna dodatkowe elementy
instalacja hydrauliczna dodatkowe elementy
instalacja wod-kan dodatkowe elementy

 

Twoje dane