Konfigurator domu

PL/EN

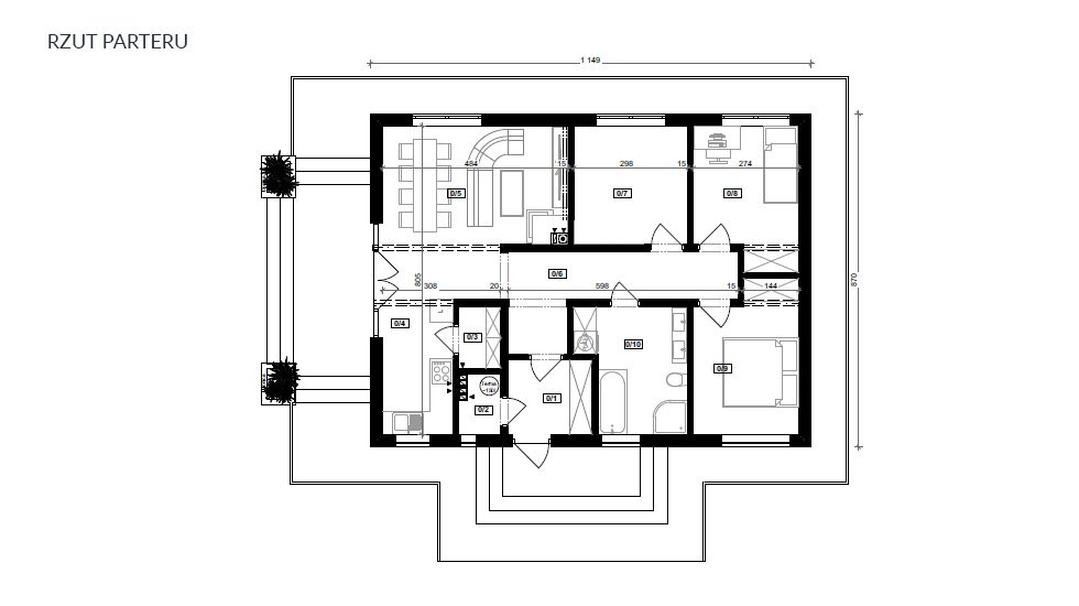
PROJEKT NATURO 4 80,52 m2

Powierzchnia domu po podłodze: 80,52 m²

Parter 80,52 m2
0/1 Wiatrołap 4,33 m²
0/2 Pom. gospodarcze 1,73 m²
0/3 Spiżarnia 1,60 m²
0/4 Kuchnia 6,44 m²
0/5 Salon z jadalnią 19,21 m²
0/6 Korytarz 9,84 m²
0/7 Pom. pomocnicze 9,14 m²
0/8 Pokój 9,49 m²
0/9 Pokój 10,16 m²
0/10 Łazienka 8,58 m²

Przejdź do formularza konfuguratora »

Wybierz/zaznacz parametry konfigurowanego domu

pokrycie dachowe dodatkowe elementy
instalacja elektryczna dodatkowe elementy
instalacja hydrauliczna dodatkowe elementy
instalacja wod-kan dodatkowe elementy

 

Twoje dane